Rue du Chêne 20, 1020 Renens
1.5 pièce neuf - A20-302
Loyer:
CHF 1'280 / mois
Charges:
CHF 120 / mois
Total:
CHF 1'400 / mois
Caractéristiques principales
Nb de pièces:
1.5
Etage:
3
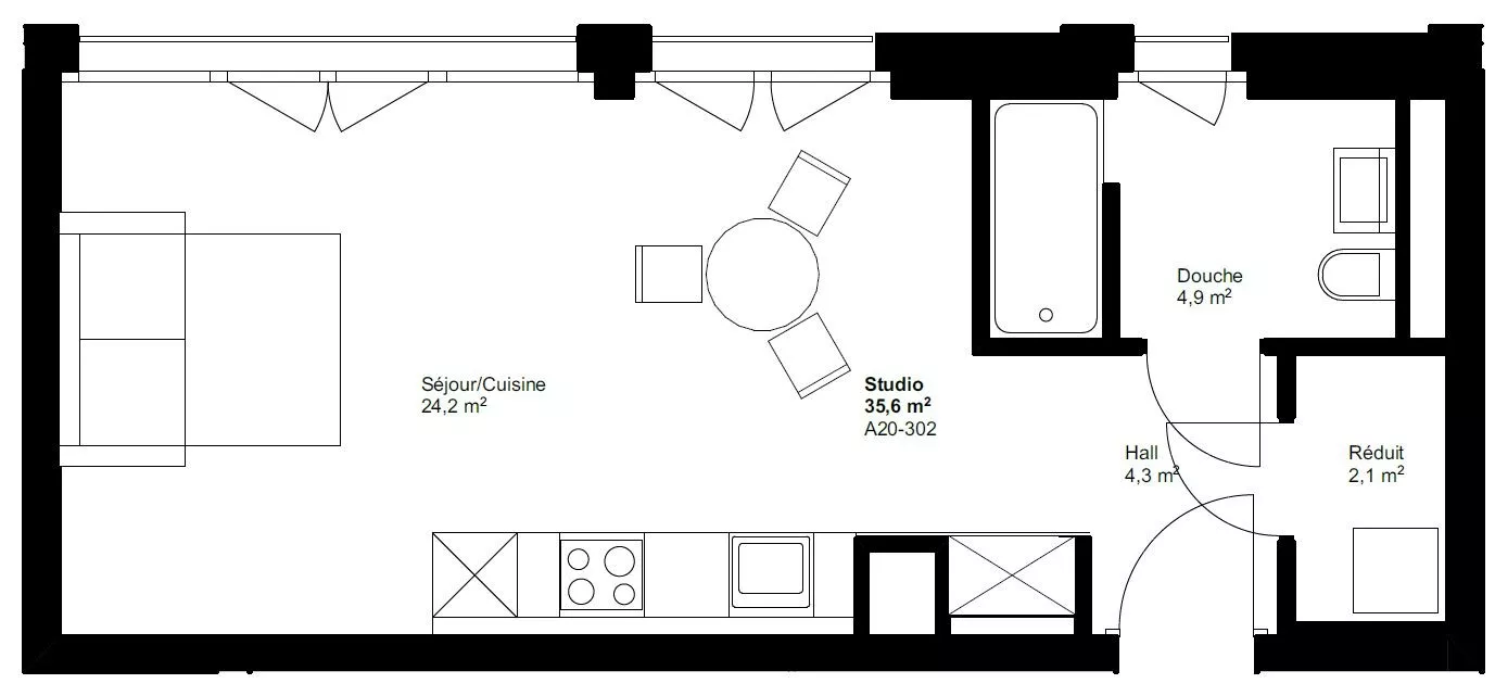
Surface habitable:
36m²
Disponibilité:
01-05-2026
Description
Livraison prévue dès le printemps 2026
Découvrez LES CHÊNES DE RENENS, un nouveau quartier résidentiel, offrant 175 appartements neufs à louer, du studio cosy au spacieux 5.5 pièces familial, en passant par des duplex avec ateliers privatifs et des logements à loyer abordable. Ici, chaque style de vie trouve sa place !
Tous les appartements se distinguent par leur généreuse superficie, leur agencement optimal et des finitions de standing, offrant un cadre de vie confortable et raffiné.
Imaginez un îlot de tranquillité, baigné de lumière et conçu pour votre confort. LES CHÊNES DE RENENS, c'est 175 appartements contemporains nichés dans un ancien site industriel, transformé en un quartier résidentiel moderne et convivial.
Chaque immeuble s'organise autour d'un vaste parc arboré, véritable bulle de verdure. La plupart des appartements profitent d'un espace extérieur privé, idéal pour se ressourcer ou partager des moments entre voisins. Les buanderies-lounges communautaires, à chaque entrée, deviennent de vrais lieux de rencontre et d'échanges.
Découvrez LES CHÊNES DE RENENS, un nouveau quartier résidentiel, offrant 175 appartements neufs à louer, du studio cosy au spacieux 5.5 pièces familial, en passant par des duplex avec ateliers privatifs et des logements à loyer abordable. Ici, chaque style de vie trouve sa place !
Tous les appartements se distinguent par leur généreuse superficie, leur agencement optimal et des finitions de standing, offrant un cadre de vie confortable et raffiné.
Imaginez un îlot de tranquillité, baigné de lumière et conçu pour votre confort. LES CHÊNES DE RENENS, c'est 175 appartements contemporains nichés dans un ancien site industriel, transformé en un quartier résidentiel moderne et convivial.
Chaque immeuble s'organise autour d'un vaste parc arboré, véritable bulle de verdure. La plupart des appartements profitent d'un espace extérieur privé, idéal pour se ressourcer ou partager des moments entre voisins. Les buanderies-lounges communautaires, à chaque entrée, deviennent de vrais lieux de rencontre et d'échanges.
Commodités
Ascenseur
Parking
Garage
Animaux acceptés
Devenez locataire en 3 étapes:
Contactez-nous via le formulaire
Visitez le bien
Postulez en ligne